Residential Spaces

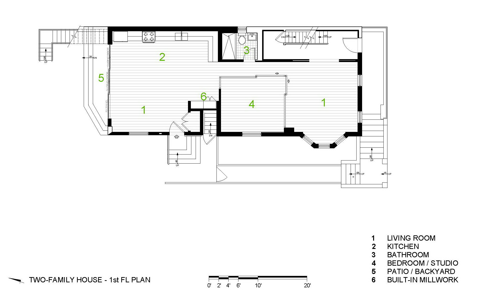
Two-Family house

Astoria

Client

Private

Date

September 2022

Services

Architectural Design - Filing and Approval - Construction follow-up

Extension & Interior Renovation

Queens, NY

Built

logo item